Premier Inn Lincoln

BDG Studio designed a 131-bedroom Premier Inn in Lincoln, delivering a contemporary hotel that complements the city’s historic character and cathedral views.


Project Client
Seven Capital Hotels (Lincoln) Ltd
Project Location
Lincoln

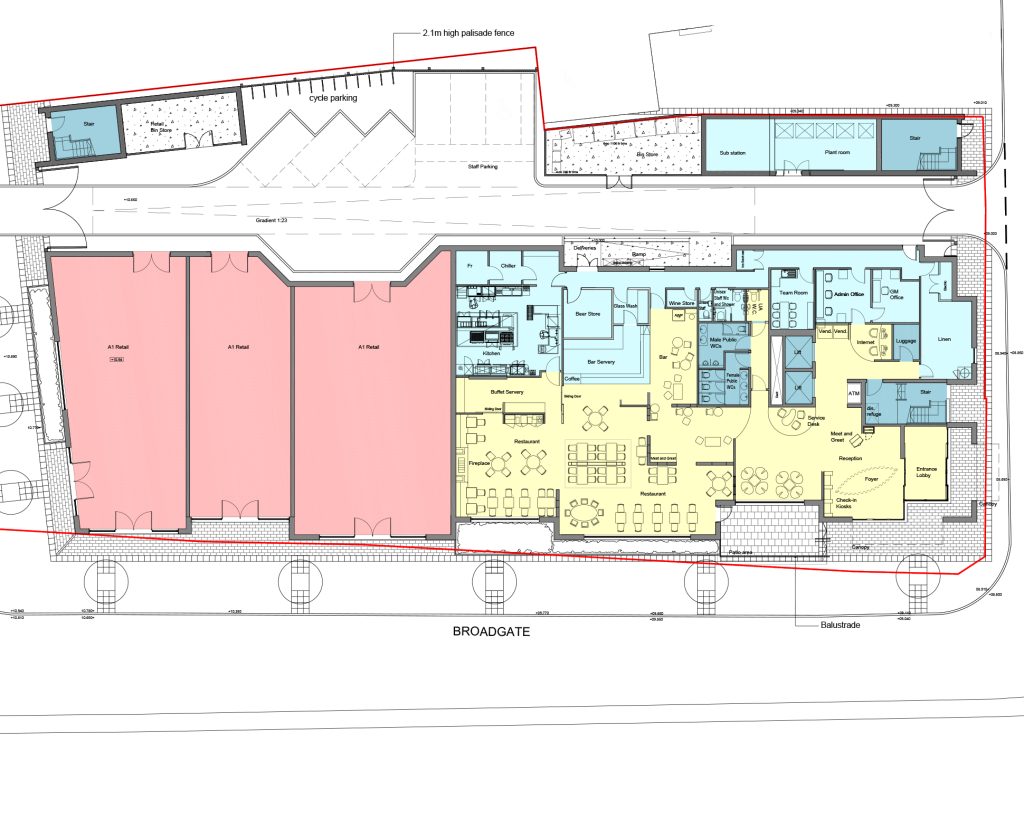
BDG Studio designed a 131-bedroom Premier Inn hotel in Lincoln on behalf of Seven Capital Hotels (Lincoln) Ltd. The development occupies a prominent site on Broadgate, formerly a petrol filling station and public house, and sits just a short walk from Lincoln rail station, Lincoln Castle, and the Cathedral. Taking advantage of its striking location, the building has been carefully proportioned using the golden ratio, a principle found in many of Lincoln’s historic buildings, to ensure it sits harmoniously within its context while offering guests spectacular views across the city.

The hotel’s external design is defined by a simple, high-quality material palette of cast stone, brickwork, glass and render, giving the building a contemporary yet timeless character. At street level, a light-toned granite plinth provides a clear transition between public realm and building, with detailed paving at the corners creating points of interest. Enhancements to Broadgate include new tree planting to extend the green corridor and complement views of the Cathedral, while bespoke metal gates, designed to a Fibonacci rhythm, secure parking and service areas without disrupting the streetscape.